南流山福祉会館
南流山福祉会館
◇地域住民の福祉のまちづくり◇
 地域住民の安心と共に支え合う福祉のまちづくりを目指して、昭和57年4月に開館しました。
住  所:流山市南流山3-3-1
電話番号:04-7150-4320
休  館  日:年末年始(12月29日~1月3日)
開館時間:午前9:00~午後10:00
駐  車  場:50台収容
交  通:
 ・電車 JR武蔵野線・TX線: 南流山駅下車 徒歩約3分
 ・バス 京成バス・東武イーストバス: 南流山停留所下車
Googleマップはこちらから >>>
◆ご利用案内
◆使用時間と使用料◆
																			【開館時間】午前9時~午後10時
【休 館 日】12月29日~12月31日・1月1日~1月3日
【利用料金】各部屋 無料
	【休 館 日】12月29日~12月31日・1月1日~1月3日
【利用料金】各部屋 無料
◆ご利用の受付◆
																			1.南流山福祉会館の窓口で希望利用時間を申しでて下さい。
2.申込受付は3か月前の1日~10日まで行い、多数申し込みの場合は抽選となります。
(抽選結果は12日から確認出来ます。)
3.事前に団体登録することで電話、インターネットのほか携帯電話からも申込が出来ます。
	2.申込受付は3か月前の1日~10日まで行い、多数申し込みの場合は抽選となります。
(抽選結果は12日から確認出来ます。)
3.事前に団体登録することで電話、インターネットのほか携帯電話からも申込が出来ます。
◆流山市公共施設予約システムのご利用◆
																			1.流山市在住の方は、利用登録をして、システムのご利用ができます。
登録は身分証明書をご持参の上窓口で手続きして下さい。
2.インターネットでのご利用
・パソコンでは、ここをクリックすると、市の予約システムに接続します。
・携帯電話からも利用できます。
3.空き状況の照会は、登録しない方でもできます。
	登録は身分証明書をご持参の上窓口で手続きして下さい。
2.インターネットでのご利用
・パソコンでは、ここをクリックすると、市の予約システムに接続します。
・携帯電話からも利用できます。
3.空き状況の照会は、登録しない方でもできます。
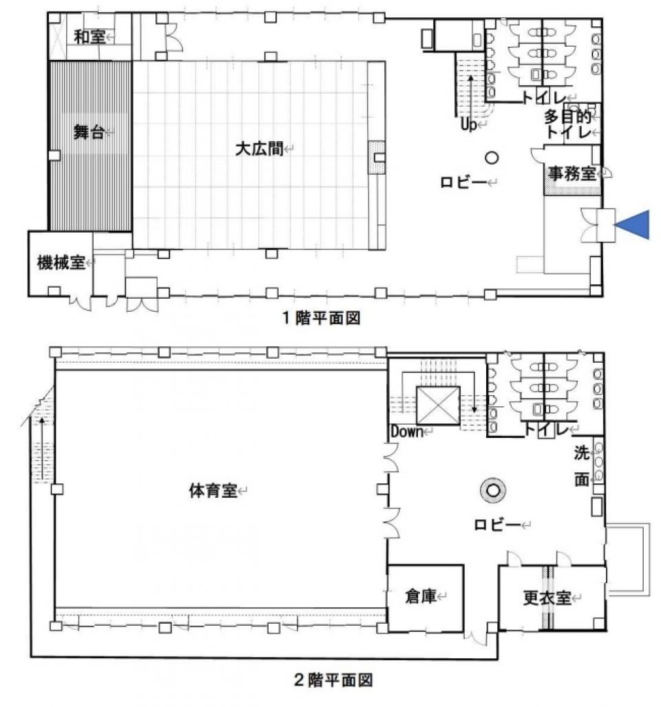
◆施設案内◆ ※画像をクリックすると拡大表示します
1階ロビー(左)と2階ロビー(右)
舞台付大広間(左)と和室(右)
体育館(左)と男女更衣室(右)
館内平面図
◆ご利用の方へ◆
																			1.使用時間には準備、後片付け等、現状復帰の為の時間を含みます。
2.備品や机椅子等を移動した場合は元の位置に戻してください。
3.施設、備品を破損、紛失の場合は復元または弁償をお願いします。
4.騒音を発する等、他人に迷惑を及ぼす行為をしないで下さい。
5.使用に当たっては収容定員を守って下さい。
6.ゴミの持ち帰りをお願いします。
	2.備品や机椅子等を移動した場合は元の位置に戻してください。
3.施設、備品を破損、紛失の場合は復元または弁償をお願いします。
4.騒音を発する等、他人に迷惑を及ぼす行為をしないで下さい。
5.使用に当たっては収容定員を守って下さい。
6.ゴミの持ち帰りをお願いします。
◆自主事業のご案内
南流山福祉会館で開催するいろいろなイベントを紹介します。1年を通してさまざまなイベントを開催していますので、ぜひご参加ください。詳しい開催時期や内容につきましては、随時お尋ねください(電話 04-7150-4320)。
ダンス講習会
ビデオ映写会
親子ミニ運動会
マジック教室
																			・内容:子供向け手品、大人向けマジックショー、その他
・実施時期:5月1回・10月1回
	・実施時期:5月1回・10月1回
